新築戸建てを探す
新築戸建を探す
沿線から探す
エリアから探す
マップから探す
中古戸建てを探す
マンションを探す
中古マンションを探す
土地を探す
最近見た物件
ログイン
会員登録
チェックした物件を
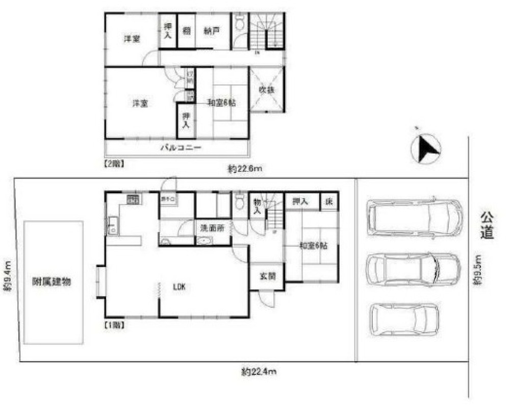
会員限定 豊川市市田町
お気に入り登録・会員限定物件の閲覧・検索条件の保存をするには、会員登録が必要です。
お気に入り物件を保存できる!
会員限定物件が閲覧できる!
プライスダウン情報が届く!
新着物件をメール配信!
検索条件を保存できる!
1分で完了!
既に会員のお客様はこちら
会員限定 豊川市大堀町
会員限定 豊川市三蔵子町
2,480万円 (月々約67,000円)
会員限定 豊川市古宿町
会員限定 豊川市若宮町
会員限定 豊川市高見町六丁目
会員限定 豊川市西桜木町一丁目
会員限定 豊川市東豊町二丁目
会員限定 豊川市大崎町
会員限定 豊川市曙町三丁目
会員限定 豊川市四ツ谷町三丁目
会員限定 豊川市代田町二丁目
会員限定 豊川市川花町二丁目
会員限定 豊川市諏訪西町二丁目
1,280万円 (月々約35,000円)
1,300万円 (月々約35,000円)
総物件数
13166件
会員限定物件
7816件
メリット1
会員限定物件の閲覧
メリット2
新着物件をメール配信
メリット3
プライスダウン物件を配信
メリット4
キャンペーン・お役立ち情報をお届け
メリット5
お気に入り物件を保存
メリット6
自動入力で簡単問い合わせ