新築戸建てを探す
新築戸建を探す
沿線から探す
エリアから探す
マップから探す
中古戸建てを探す
マンションを探す
中古マンションを探す
土地を探す
最近見た物件
ログイン
会員登録
チェックした物件を
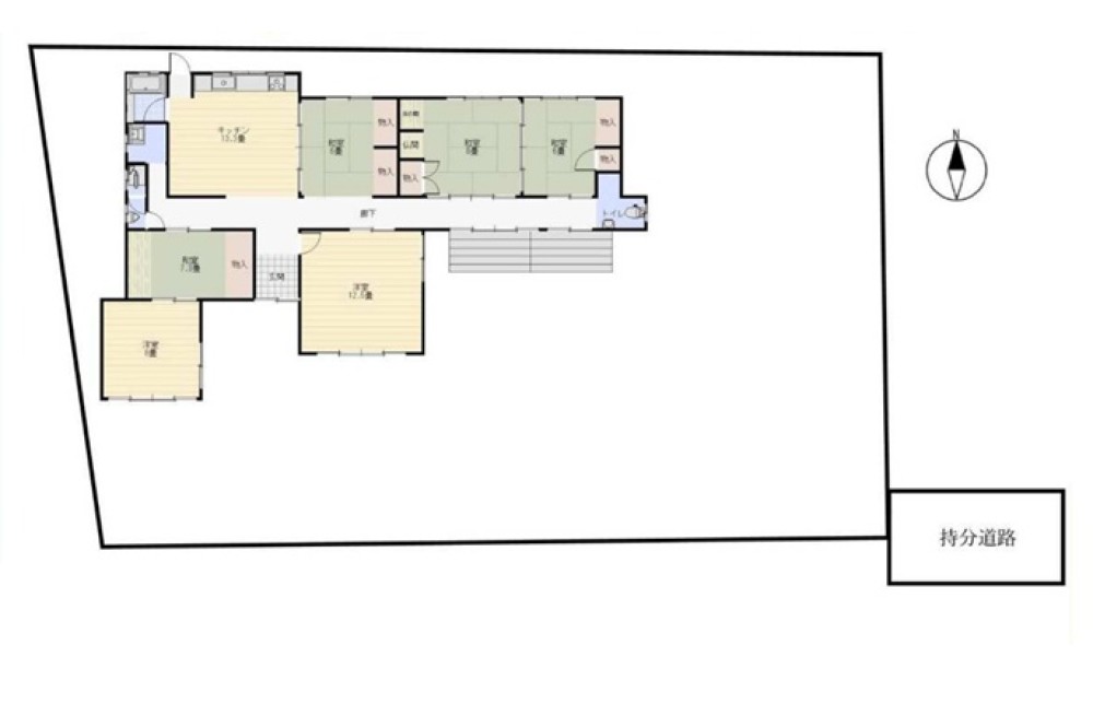
会員限定 小牧市岩崎
お気に入り登録・会員限定物件の閲覧・検索条件の保存をするには、会員登録が必要です。
お気に入り物件を保存できる!
会員限定物件が閲覧できる!
プライスダウン情報が届く!
新着物件をメール配信!
検索条件を保存できる!
1分で完了!
既に会員のお客様はこちら
会員限定 小牧市常普請
会員限定 小牧市光ケ丘六丁目
会員限定 小牧市久保一色
会員限定 小牧市桃ケ丘三丁目
会員限定 小牧市堀の内五丁目
会員限定 小牧市本庄郷浦
会員限定 小牧市古雅三丁目
会員限定 小牧市光ケ丘五丁目
会員限定 小牧市小牧原新田
会員限定 小牧市本庄
会員限定 小牧市光ケ丘
1,600万円 (月々約43,000円)
1,650万円 (月々約45,000円)
会員限定 小牧市弥生町
会員限定 小牧市小松寺
2,600万円 (月々約70,000円)
2,690万円 (月々約73,000円)
会員限定 小牧市応時
会員限定 小牧市大字東田中
総物件数
12667件
会員限定物件
7812件
メリット1
会員限定物件の閲覧
メリット2
新着物件をメール配信
メリット3
プライスダウン物件を配信
メリット4
キャンペーン・お役立ち情報をお届け
メリット5
お気に入り物件を保存
メリット6
自動入力で簡単問い合わせ