新築戸建てを探す
新築戸建を探す
沿線から探す
エリアから探す
マップから探す
中古戸建てを探す
マンションを探す
中古マンションを探す
土地を探す
最近見た物件
ログイン
会員登録
チェックした物件を
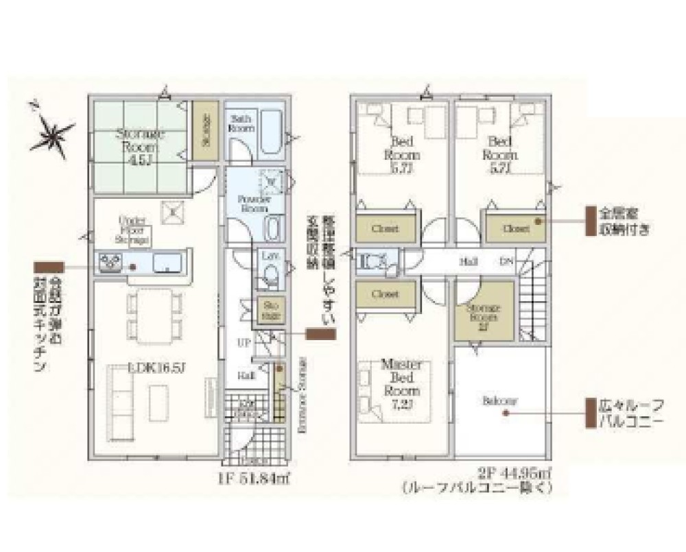
会員限定 岡崎市本宿台 全5棟 1号棟
お気に入り登録・会員限定物件の閲覧・検索条件の保存をするには、会員登録が必要です。
お気に入り物件を保存できる!
会員限定物件が閲覧できる!
プライスダウン情報が届く!
新着物件をメール配信!
検索条件を保存できる!
1分で完了!
既に会員のお客様はこちら
会員限定 岡崎市本宿台 全5棟 5棟
会員限定 岡崎市本宿茜 全1棟 A号棟
総物件数
13284件
会員限定物件
8203件
メリット1
会員限定物件の閲覧
メリット2
新着物件をメール配信
メリット3
プライスダウン物件を配信
メリット4
キャンペーン・お役立ち情報をお届け
メリット5
お気に入り物件を保存
メリット6
自動入力で簡単問い合わせ