新築戸建てを探す
新築戸建を探す
沿線から探す
エリアから探す
マップから探す
中古戸建てを探す
マンションを探す
中古マンションを探す
土地を探す
最近見た物件
ログイン
会員登録
チェックした物件を
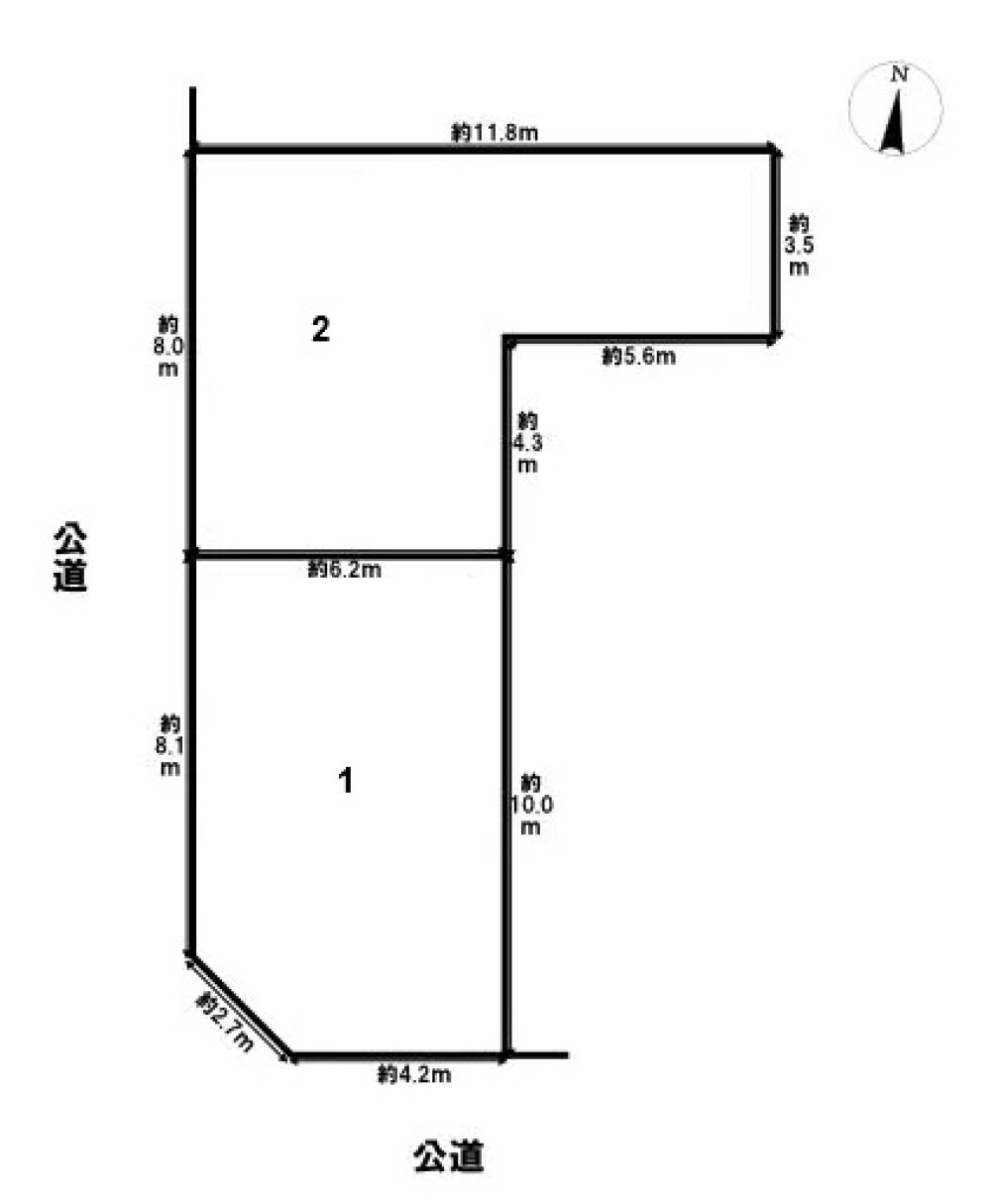
会員限定 江南市古知野町花霞 全4区画 1号地
お気に入り登録・会員限定物件の閲覧・検索条件の保存をするには、会員登録が必要です。
お気に入り物件を保存できる!
会員限定物件が閲覧できる!
プライスダウン情報が届く!
新着物件をメール配信!
検索条件を保存できる!
1分で完了!
既に会員のお客様はこちら
898万円
会員限定 一宮市観音寺 全4区画 C区画
会員限定 刈谷市野田町 全2区画 1号地
会員限定 豊川市金屋元町1期 2号地
会員限定 稲沢市下津町 全3区画 C区画
会員限定 刈谷市小垣江町 全4区画 D区画
1,298万円
会員限定 豊橋柳生川南部土地区画整理事業5街区4番2 全3区画
会員限定 額田郡幸田町大字芦谷 全3区画 B号地
会員限定 名古屋市西区城西 408① 1区画
1,598万円
会員限定 豊橋市浪ノ上町
会員限定 名古屋市瑞穂区柳ケ枝町 248② 全2区画 1号地
3,699万円
会員限定 みよし市三好町 ⑤区画
会員限定 瀬戸市川西町
会員限定 名古屋市東区芳野一丁目 全4区画 1区画
1,849万円
会員限定 知多市八幡字里脇 全7区画 C号地
総物件数
13167件
会員限定物件
7817件
メリット1
会員限定物件の閲覧
メリット2
新着物件をメール配信
メリット3
プライスダウン物件を配信
メリット4
キャンペーン・お役立ち情報をお届け
メリット5
お気に入り物件を保存
メリット6
自動入力で簡単問い合わせ