
お気に入り登録・会員限定物件の閲覧・検索条件の保存をするには、会員登録が必要です。
お気に入り物件を
保存できる!
会員限定物件が
閲覧できる!
プライス
ダウン情報が
届く!
新着物件を
メール配信!
検索条件を
保存できる!
| 価格 |
2,950万円 (月々約80,000円) |
||
|---|---|---|---|
| 所在地 | 愛知県豊橋市大岩町字高足道 | ||
| 交通 | JR東海道本線「二川駅」徒歩 7分 | ||
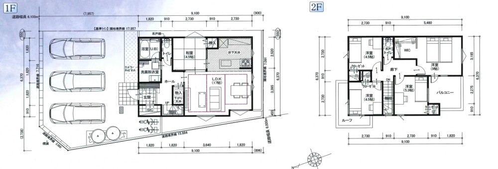
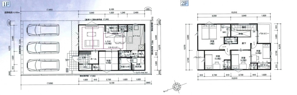
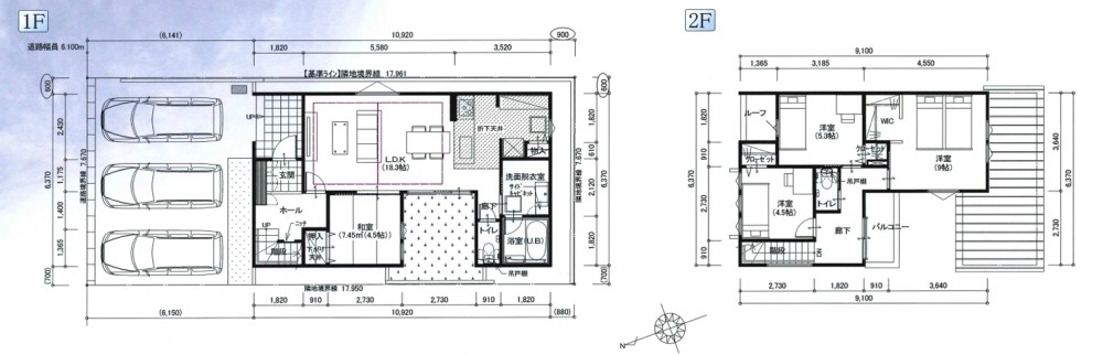
| 間取り | 4 LDK | 築年月 | 1998年 6月 (27年) |
| 建物面積 | 91.91㎡ | 土地面積 | 135.88㎡ (41.1坪) |
| ポイント |
|
||
二川小学校
二川中学校
JR東海道本線 二川駅
東山保育園
1100m(徒歩約14分)
ヤマナカ二川店
569m(徒歩約8分)
ファミリーマート 豊橋大岩店
600m(徒歩約8分)
ココカラファインシーズ調剤薬局 二川店
456m(徒歩約6分)
岩屋緑地
1300m(徒歩約17分)
二川郵便局
1300m(徒歩約17分)
※地図更新のタイミングの関係で、現況とは異なる場合がございます。その場合は現況を優先とします。
| 所在地 | 愛知県豊橋市大岩町字高足道 | ||
|---|---|---|---|
| 交通 | JR東海道本線「二川駅」徒歩 7分 | ||
| 価格 |
2,950万円 (月々約80,000円) |
||
| 他費用 | |||
| 建物面積 | 91.91㎡ | 土地面積 | 135.88㎡ (41.1坪) |
| 間取り | 4 LDK | 築年月 | 1998年 6月 (27年) |
| 建物構造 | 木造 | 駐車場 | 3台 |
| 接道状況 | 公道 北東側 幅員約11.6m 間口約9.5m接道 | ||
| 私道負担 | 無 | ||
| 都市計画 | 市街化区域 | 用途地域 | 1種住居 |
| 建蔽率 | 60% | 容積率 | 200% |
| 地目 | 宅地 | 現況 | 空 |
| 法令制限 | 景観法 / 22条区域 / 都市再生特別措置法 / 盛土規制法 | ||
| 販売区画 | 土地権利 | 所有権 | |
| 引渡し | 相談 | ||
| 設備 | |||
| 備考 | 現況有姿渡し、リフォーム履歴あり | ||
| 更新日 | 2026年04月07日 | 次回更新 予定日 |
|
| 物件番号 | 99929 | 取引態様 | 仲介 |
月々の支払額は金利0.7%にて借入期間を35年間として物件価格全額を借入した場合の簡易計算の参考値です。
購入時には物件価格とは別に所為費用が必要となります。また、上記金額は一例であり実際の融資を保証するものではありません。
0532-39-3955 受付時間 10:00〜18:00
定休日:火・水曜日定休
〒440-0885
愛知県豊橋市中柴町103番地 Grand Moat 1F
株式会社sumarch(スマーチ) 愛知県知事(2)第24391号
電話でのお問い合わせ先: 0120-115-006
メリット1
会員限定物件の
閲覧
メリット2
新着物件を
メール配信
メリット3
プライスダウン
物件を配信
メリット4
キャンペーン・
お役立ち情報を
お届け
メリット5
お気に入り物件を
保存
メリット6
自動入力で
簡単問い合わせ
担当者コメント
ハウスボカン豊橋店
山口 和樹(ヤマグチ カズキ)
お住まい探しを通して山口に任せてよかったといって頂けるようお客様に寄り添ったご提案をさせて頂きます。 ご不安な点やご要望をたくさん聞かせてください!
資格宅地建物取引士