
お気に入り登録・会員限定物件の閲覧・検索条件の保存をするには、会員登録が必要です。
お気に入り物件を
保存できる!
会員限定物件が
閲覧できる!
プライス
ダウン情報が
届く!
新着物件を
メール配信!
検索条件を
保存できる!
| 価格 |
2,490万円 (月々約67,000円) |
||
|---|---|---|---|
| 所在地 | 愛知県豊川市大崎町小林 | ||
| 交通 | 名鉄豊川線「諏訪町駅」徒歩 34分 | ||
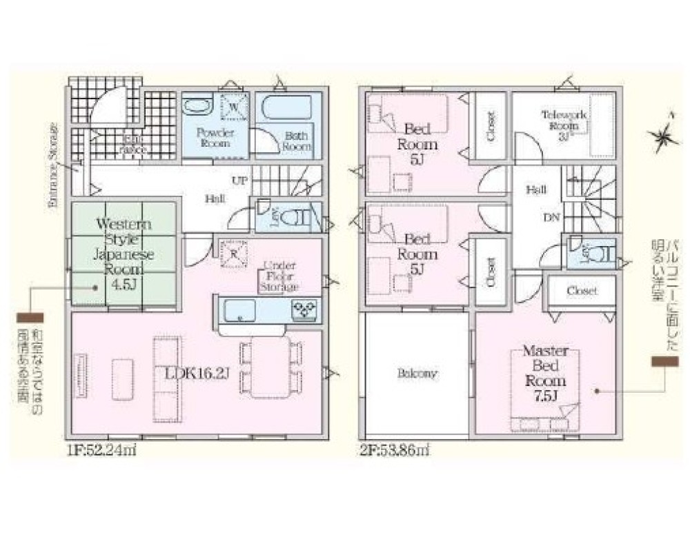
| 間取り | 3 LDK | 築年月 | 2025年 12月 |
| 建物面積 | 99.22㎡ | 土地面積 | 132㎡ (39.93坪) |
| ポイント |
|
||
三蔵子小学校
金屋中学校
名鉄豊川線 諏訪町駅
※地図更新のタイミングの関係で、現況とは異なる場合がございます。その場合は現況を優先とします。
| 所在地 | 愛知県豊川市大崎町小林 | ||
|---|---|---|---|
| 交通 | 名鉄豊川線「諏訪町駅」徒歩 34分 | ||
| 価格 |
2,490万円 (月々約67,000円) |
||
| 他費用 | |||
| 建物面積 | 99.22㎡ | 土地面積 | 132㎡ (39.93坪) |
| 間取り | 3 LDK | 築年月 | 2025年 12月 |
| 建物構造 | 木造 | 駐車場 | 2台 |
| 接道状況 |
私道
東側
幅員約4.38m
間口約6.7m接道
公道 北側 幅員約8.1m 間口約10.4m接道 |
||
| 私道負担 | 無 | ||
| 都市計画 | 市街化区域 | 用途地域 | 1種住居 |
| 建蔽率 | 60% | 容積率 | 200% |
| 地目 | 宅地 | 現況 | 完成済 |
| 法令制限 | 22条区域 / 宅地造成等工事規制区域 | ||
| 建物棟数 | 建築確認 番号 |
第HPA-25-10054-1号 | |
| 販売区画 | 土地権利 | 所有権 | |
| 引渡し | 即 | ||
| 設備 | 電気 / 都市ガス / 公営水道 / 本下水 / | ||
| 備考 | |||
| 更新日 | 2026年02月02日 | 次回更新 予定日 |
|
| 物件番号 | 168987 | 取引態様 | 仲介 |
月々の支払額は金利0.7%にて借入期間を35年間として物件価格全額を借入した場合の簡易計算の参考値です。
購入時には物件価格とは別に所為費用が必要となります。また、上記金額は一例であり実際の融資を保証するものではありません。
0533-83-1755 受付時間 10:00〜18:00
定休日:火・水曜日定休
〒442-0842
愛知県豊川市蔵子6丁目3-3
株式会社sumarch(スマーチ) 愛知県知事(2)第24391号
電話でのお問い合わせ先: 0120-115-006
メリット1
会員限定物件の
閲覧
メリット2
新着物件を
メール配信
メリット3
プライスダウン
物件を配信
メリット4
キャンペーン・
お役立ち情報を
お届け
メリット5
お気に入り物件を
保存
メリット6
自動入力で
簡単問い合わせ
担当者コメント
ハウスボカン豊川店
武藤 由佐(ムトウ ユウスケ)
お家作りのお困りごとなら、何でもご相談下さい!初めての方にも一から丁寧にサポート致します。お客様のご要望に合ったご提案を致しますので、ご来店お待ちしております!
資格宅地建物取引士、ファイナンシャルプランナー