
お気に入り登録・会員限定物件の閲覧・検索条件の保存をするには、会員登録が必要です。
お気に入り物件を
保存できる!
会員限定物件が
閲覧できる!
プライス
ダウン情報が
届く!
新着物件を
メール配信!
検索条件を
保存できる!
| 価格 |
1,399万円 |
||
|---|---|---|---|
| 所在地 | 愛知県大府市月見町 | ||
| 交通 | JR東海道本線「大府駅」徒歩 4分 | ||
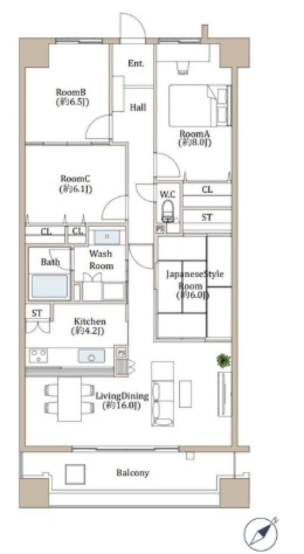
| 間取り | 3 LDK +1S | 築年月 | 1988年 7月 (37年) |
| 専有面積 | 94.1㎡ | バルコニー面積 | 14.06m² |
| ポイント |
|
||
大府小学校
大府中学校
JR東海道本線 大府駅
※地図更新のタイミングの関係で、現況とは異なる場合がございます。その場合は現況を優先とします。
| 名称 | メイツ大府 | ||
|---|---|---|---|
| 所在地 | 愛知県大府市月見町 | ||
| 交通 | JR東海道本線「大府駅」徒歩 4分 | ||
| 価格 |
1,399万円 |
||
| 管理費 | 10,400円 | 修繕積立 | 31,860円 |
| 他費用 | |||
| 専有面積 | 94.1㎡ | ベランダ 面積 |
14.06㎡ |
| 間取り | 3 LDK +1S | 築年月 | 1988年 7月 (37年) |
| 所在階数 | 2F | 建物階数 | 地上8F |
| 総戸数 | 55戸 | 建物構造 | RC |
| 管理会社 | 野村不動産パートナーズ(株) | 管理形態 | |
| 施工会社 | 戸田建設 | 駐車場 | 近隣確保 |
| 現況 | 空 | ||
| 販売区画 | 土地権利 | 所有権 | |
| 引渡し | 相談 | ||
| 備考 | |||
| 更新日 | 2026年03月27日 | 次回更新 予定日 |
|
| 物件番号 | 167524 | 取引態様 | 仲介 |
月々の支払額は金利0.7%にて借入期間を35年間として物件価格全額を借入した場合の簡易計算の参考値です。
購入時には物件価格とは別に所為費用が必要となります。また、上記金額は一例であり実際の融資を保証するものではありません。
052-689-2455 受付時間 10:00〜18:00
定休日:火・水曜日定休
〒476-0011
愛知県東海市富木島町前外面93番地1
株式会社sumarch(スマーチ) 愛知県知事(2)第24391号
電話でのお問い合わせ先: 0120-115-006
メリット1
会員限定物件の
閲覧
メリット2
新着物件を
メール配信
メリット3
プライスダウン
物件を配信
メリット4
キャンペーン・
お役立ち情報を
お届け
メリット5
お気に入り物件を
保存
メリット6
自動入力で
簡単問い合わせ
担当者コメント
ハウスボカン東海店[5/15迄店舗改装中]
片野 雄斗(カタノ ユウト)
人生の大きなお買い物、その大切な決断に携わらせていただくにあたり、ご希望や不安をしっかりと受け止め、最適なご提案をさせていただきます。お客様の大切な選択を全力でサポートしこちらも全身全霊で対応します!
資格